Course Description: This course provides instruction on the practical design, implementation, and management of living systems as fundamental elements of multifunctional infrastructures and operative landscapes at a range of scales and contexts. Planning, design, implementation, maintenance, and professional communication methods are exercised through a series of project scenarios.
2023







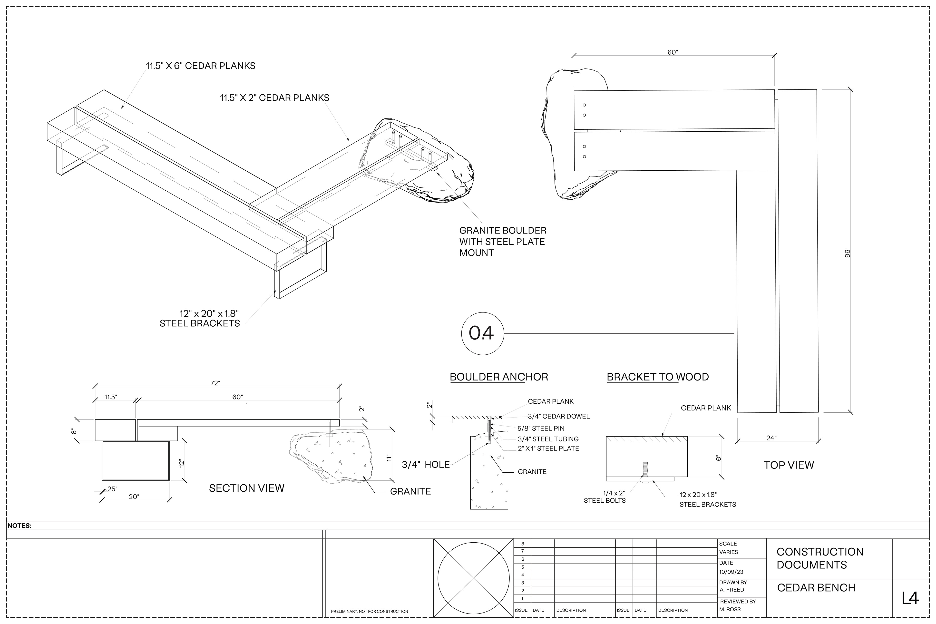
Abbey Freed, Fall 2023






Allyssa Clements, Fall 2023







Marti Roca Busacker, Fall 2023
2022




project by Amber Adams, Fall 2022



project by Olivia Gingerich, Fall 2022
OPERATIVE AND TEMPORAL DYNAMICS



project by Jenna Ely, Fall 2022




project by Taylor Uren, Fall 2022
THIRD CREEK GREENWAY




project by Alice Irizarry, Fall 2022
2021



project by Faith Jackson, Fall 2021



project by Chloe Kilpatrick, Fall 2021
THIRD CREEK GREENWAY






project by Faith Jackson, Fall 2021
2020
CAMPUS BIOSWALES





project by Caleb Brackney, Fall 2020





project by Taylor Harrell, Fall 2020