Course Description: This course focuses on design issues related to construction, fabrication, materiality, and tectonics for landscape architecture. Students will learn about construction-related issues such as layout, dimensioning, and the creation of construction details, as well as explore new technologies, methods, and materials being utilized in contemporary landscape architectural design and construction practices.
 
      
     
      
    2024
 
      
     
      
    Project by Caitlin Axsom, Spring 2024 
 
      
     
      
    Project by Abbey Freed, Spring 2024 
 
      
     
      
    Project by Marti Roca Busacker, Spring 2024
Exercise: The group design exercise focus on the Museum of Infinite Outcomes, a local educational landscape that invites people to engage more deeply, through workshops and gardening, with plants and wildlife. The site consists of the northern sloping portion of the museum, which is currently overtaken by kudzu. Student explored a detail, be it a paver or human-scaled structure, that could engage museum visitors, mitigate the kudzu’s expansion through artful ways, and advance local material sourcing or upcycling. The detail’s deployment and assembly should act as catalyst for wider design interventions, such as paths or gathering spaces. Students will develop a construction documentation set and supplementary visuals to present their work before the museum’s board
and community members.
and community members.
 
      
     
      
     
      
     
      
     
      
     
      
     
      
    Project by Allyssa Clements and Dalton Loveless, Spring 2024
2023
 
      
     
      
     
      
     
      
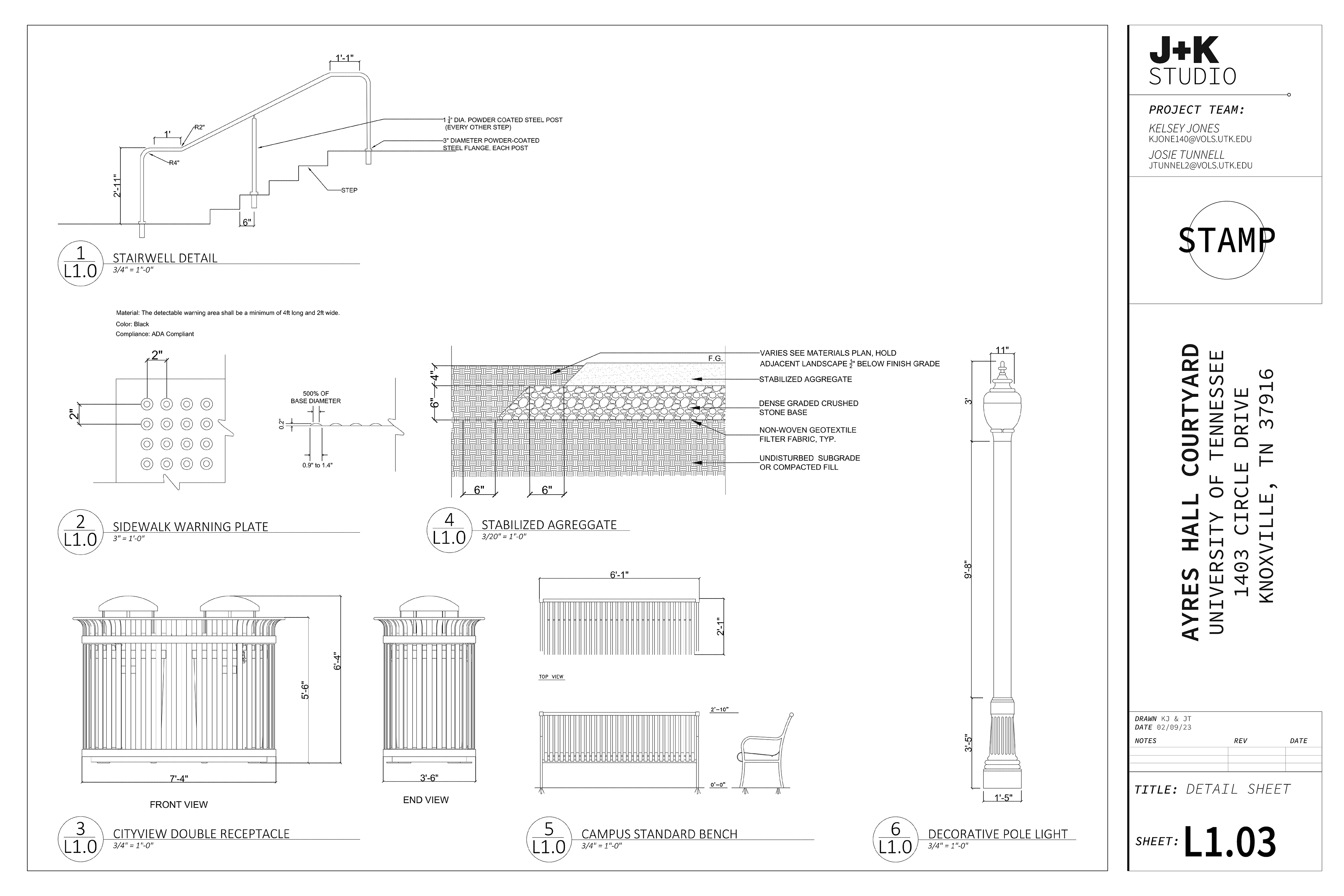
    project by Josie Tunnel + Kelsey Jones, Spring 2023
 
      
     
      
     
      
    project by Amber Adams + Carly Harland, Spring 2023
project by Nattaya Malmstead + Evy Vandivort, Spring 2023
 
      
     
      
     
      
     
      
     
      
     
      
    project by Nora Jacobs & Sarah Kenney, Spring 2023
2022
 
      
     
      
     
      
     
      
    project by Haley Dennis + Georgia Morris, Spring 2022
 
      
     
      
     
      
    project by Marilyn Reish + Stormie Tibbs, Spring 2022
 
      
     
      
     
      
     
      
    project by Alex Holloway + Seth Zanoni, Spring 2022
2021
 
      
     
      
     
      
    project by Sydney Bittinger, Spring 2021
 
      
     
      
     
      
     
      
     
      
     
      
     
      
    project by Sydney Bittinger, Spring 2021
 
      
     
      
     
      
     
      
    project by Taylor Harrell, Spring 2021
2019
 
      
     
      
     
      
    project by Elizabeth Ellis, Spring 2019
 
      
     
      
    project by Danny Rose + Dustin Toothman + Payton Watson, Spring 2019
 
      
     
      
     
      
    project by Bridget Ash + Elizabeth Ellis + Danny Rose, Spring 2019